Yesteryear's tools
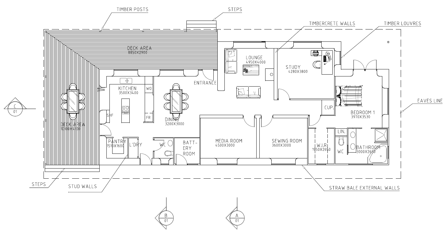
At long last another update. We've moved in just over a year ago but still have quite a bit of work to do.
I am currently working on my office so that I can actually move into it. For the last few days I have been installing the wooden floor …





































According to
The
more I think about the state of solar electricity generation and
government support the more I understand that gross metered feed in
tariffs are a really powerful means to increase the uptake of solar
panels amongst the public.
Solar Girl from the
"
Just
a quick message to wish everyone a Merry Christmas and a Happy New Year.
I reckon 2009 will be a most interesting year for all.


During
the weekend before last, Rosalba and I attended a course put on by the
Rainbow Power Company titled "
John, one of our friends, has given us some free door handles for our new
home. John is a locksmith and has told us that these handles would have
most likely been thrown out.












